passive buildings

“…Today, environmental concerns and the quest for urban/social/economic [and energy] regeneration (I feel optimistic about it), almost inevitable in this change of model that our age proposes and desires, calls for an evolution of architecture, an effort that is certainly conceptual and not only technological” (Bonaccorso N., 2010, Riflessioni, in Equivivere: per un’architettura sostenibile. Ed. Poligrafo, Padova. p.208. ISNB 978-88-7115-693-4)

The nbAA office practice is committed to exploring low-cost architectural design for both spatial and thermal high-quality spaces, site-specific, for all economical fringes. The video beside, edited in 2010 for the Equivivere Exposition, which have been held in Italy (cittadella), represent thoughts and concerns, which are, still, existing, and a selection of works produced until that date. (Video with 09'12").

Selected projects

JIP POPULAR KINDERGARTEN, CACÉM (2002/2006)
Special Mention Fassa Bartolo Intnl Award Sustainable Architecture 3rd ed.
Published in the 4th Compendium of Exemplary Educational Facilities by OECD, 2010

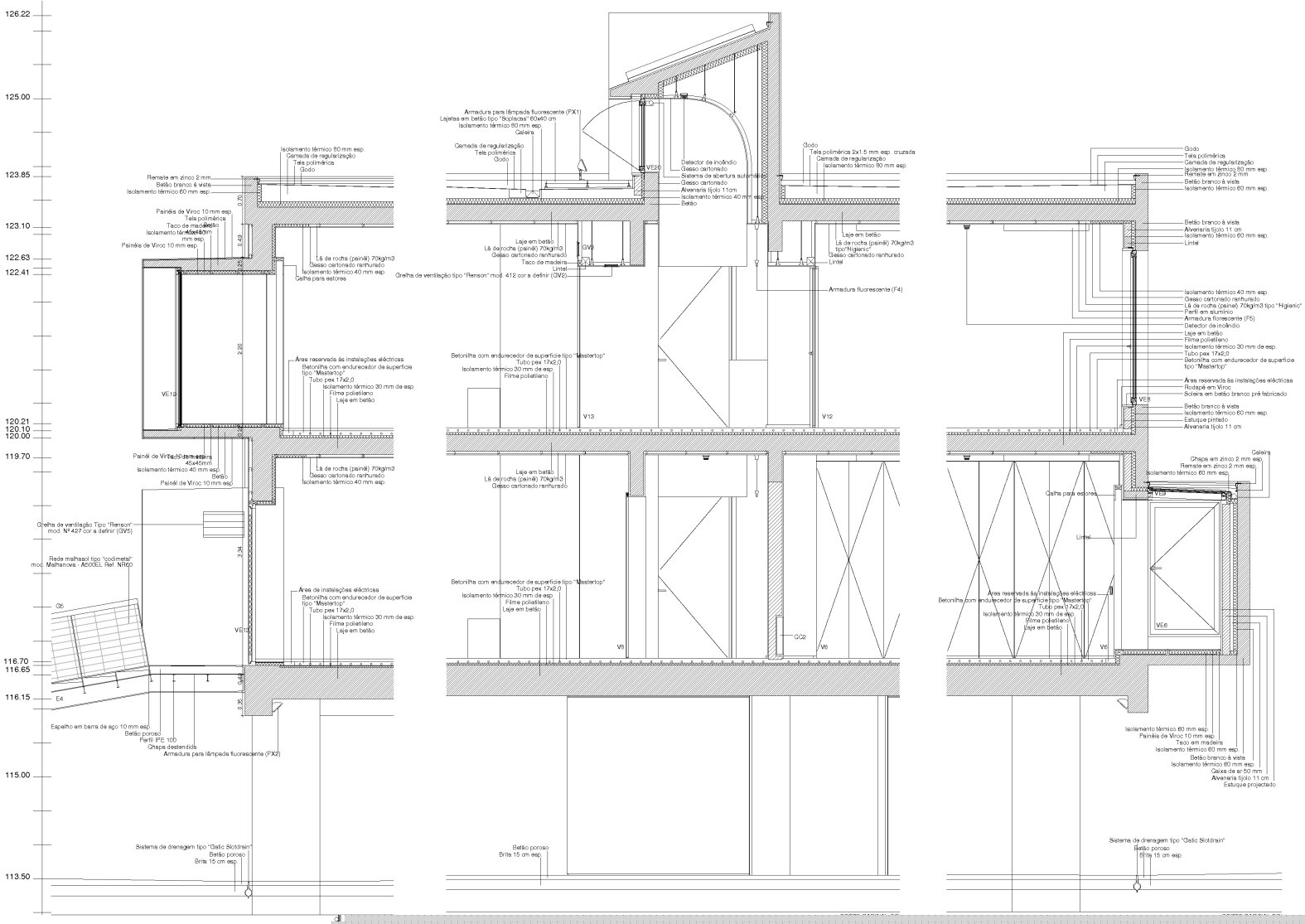
The invitation to enter the competition for the project of a re-housing a Kindergarten in a lot of the new plan for Cacém, was the opportunity to reflect on the relational characteristics of a public building with the harsh environment of a suburban area, while working and testing concepts of passive strategies integrated in a multidisciplinary project of public space.

S.E.R. Sustainable Evolutive Residence (2007/2010)
First Prize - SAIE - SELECTION AWARD 2009, Bologna, Italy

This study was developed by the nbAA office in partnership with Viroc SA, to rethink modular prefabricated houses. The concern about climate change, poverty, and energy, lead the project to a sustainable evolutive residence.

10 HOUSES IN THE HERDADE DO ARNEIRO - MONTEMOR, 2008

This study was developed by the nbAA office for an International Fund. The solution aim to integrate the construction with the landscape, minimizing the construction impact, using passive and active strategies to achieve a low energy consumption and a high internal comfort .

INTERNATIONAL SOLAR BUILDING DESIGN COMPETITION 2007
SECOND PRIZE - 2007, Beijing, China

Today, more than architectonical style , the need of a sustainable house take us to re-think about building in a GLObal way. A special characteristic of the site and the loCAL culture lead us to understand the specific needs. GLOCAL architecture is the future… Sustainable machine. The volume contain all the services of the house and all the technical supplies. Is intimately linked to the ground, as a part of it, showing itself through the rythmated chimneys. It connect with the living spaces through corridors… 

nbAA.pt site is licensed under the Creative Commons Attribution-ShareAlike 4.0 International License.
Site designed with Mobirise Website Builder

Built with Mobirise ‌

Free Offline Web Page Maker